INTERIOR DESIGN

Voordat ik begon aan mijn HBO-studie, heb ik de MBO-opleiding Interieuradviseur gevolgd aan het Jan des Bouvrie College in Amsterdam. Deze opleiding bood me de kans om diepgaande kennis en vaardigheden te ontwikkelen op het gebied van interieurontwerp en -advies. Ik leerde niet alleen de basisprincipes van ruimte-indeling, maar ook hoe ik functionele en esthetische aspecten van binnenruimtes optimaal met elkaar kon combineren. Door deze opleiding ben ik in staat om creatief en praktisch te denken bij het ontwerpen van interieurs, wat een solide basis vormt voor mijn verdere studie en carrière.


Lofthouse - Dit is een render van mijn eindproject. Het is een loftwoning die gepositioneerd was in Amsterdam en ruimte moest bieden aan een koppel met een kind. Deze mensen hielden van pasteltinten en veel grijstonen. Deze heb ik weten te combineren in een ontwerp. [Ontwikkeld in Vectorworks]

[Gerealiseerd in Sketchup en Twinmotion]

Coffee to go - Hierbij moest er een café ontwikkeld worden in een voormalig schoolgebouw, in dit restaurantje zou ruimte moeten zijn voor een bibliotheek. [Ontwikkeld in Vectorworks]

[Gerealiseerd in Sketchup en Twinmotion]

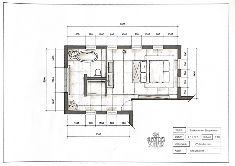
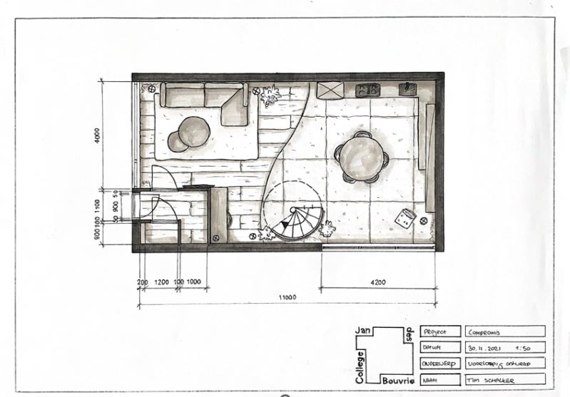
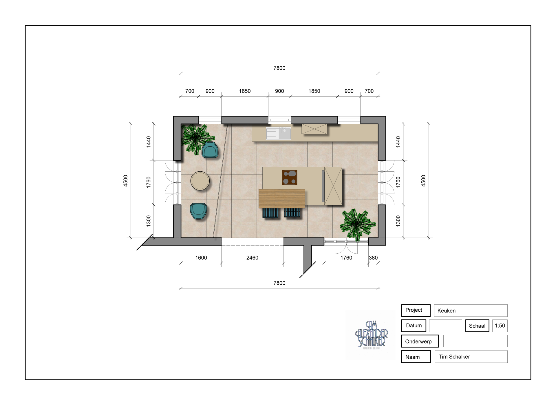
Diverse handgetekende en computer getekende plattegronden met interieurindeling. [Handgetekend]

Tiny house - Tijdens dit project hieronder is er een Tiny house gerealiseerd op basis van een aantal eisen die de klant had aangegeven.

[Gerealiseerd in Vectorworks]

Balenciaga Winkel – Interieurvisualisatie
Voor dit project ontwierp en visualiseerde ik een Balenciaga winkel. Het interieur combineert de monumentale boogstructuren met moderne elementen zoals een betonnen toonbank en strakke meubels. Goudverlichte kasten zorgen voor een luxueuze uitstraling en zetten de collectie centraal, terwijl het contrast tussen donkere vloeren en warme accenten de high-end beleving van het merk benadrukt. [Gerealiseerd in Vectorworks]

[Gerealiseerd in Sketchup en Twinmotion]